Používame cookies

Súbory cookie a ďalšie technológie sledovania používame na zlepšenie vášho zážitku z prehliadania našich webových stránok, na to, aby sme vám zobrazovali prispôsobený obsah a cielené reklamy, na analýzu návštevnosti našich webových stránok a na pochopenie toho, odkiaľ naši návštevníci prichádzajú. Viac info

 

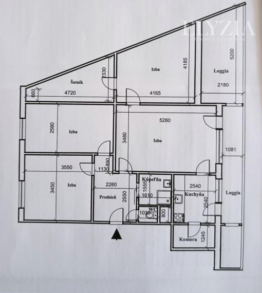
Predaj 4-IZBOVÝ BYT + šatník, terasa, loggia, 109,18 m², | KARLOVA VES – Novackého

Ulica: Novackého
Obec: Bratislava-Karlova Ves
Okres: Bratislava IV
Kraj: Bratislavský kraj
Druh: Byty
Typ: Predaj
Typ bytu: 4-izbový byt
295 000 €

Popis nehnuteľnosti

Ponúkame na predaj výborne dispozične riešený 4-izbový byt so špeciálnymi benefitmi + šatník ako samostatná izba 6,48 m2 a okrem loggie pozdĺž bytu + samostatná terasa s výmerou 10,6 m2 !!! Nachádza sa vo vyhľadávanej lokalite Bratislava IV – Karlova Ves, na Novackého ulici, 3/ 6 v bytovom dome s výťahom. Byt pôsobí veľmi príjemne a harmonicky, ponúka dostatok priestoru pre rodinné bývanie a zároveň pocit súkromia v pokojnej lokalite plnej zelene.
Je orientovaný na dve svetové strany, čo zabezpečuje príjemnú svetelnosť a dobrú vetrateľnosť.
Celková výmera nehnuteľnosti vrátane príslušenstva je 109,18 m², z toho podlahová plocha bytu bez započítania loggií a pivnice je 85,87 m².

Dispozične byt pozostáva zo štyroch obytných miestností a príslušenstva:
Spálňa – 14,57 m²
Spálňa – 12,25 m²
Izba – 12,11 m²
Obývacia izba – 18,28 m²
Samostatná kuchyňa s výstupom do loggie – 6,55 m²
Komora – 2,93 m²
Kúpeľňa – 2,66 m²
WC – 0,98 m²
Predsieň – 4,90 m²
Šatník / samostatná miestnosť bez okna – 6,48 m²
Loggia I – 10,62 m²
Loggia II / terasa – 10,28 m²
Pivnica – 2,41 m²

Veľkou výhodou bytu je loggia po celej dĺžke, ktorá vytvára ideálny priestor na rannú kávu či večerný oddych, ako aj samostatná terasa prístupná z jednej izby, ktorá ponúka ešte viac súkromia.
Byt prešiel čiastočnou rekonštrukciou, boli vymenené okná, upravená kúpeľňa, WC a kuchyňa a osadené bezpečnostné vstupné dvere, vďaka čomu je okamžite obývateľný, no zároveň ponúka priestor na modernizáciu podľa vlastných predstáv.
Benefitom je samostatná miestnosť využívaná ako šatník, ktorá môže slúžiť aj ako pracovňa alebo úložný priestor.
Bytový dom má komorný charakter, pozostáva zo 7 podlaží s výťahom a prešiel rekonštrukciou vrátane zateplenia a výmeny stupačiek. Spoločné priestory, ktoré zahŕňajú aj nebytové spoločné priestory (kočikáreň, sklady...) sú udržiavané a pôsobia príjemne a upravene.

Lokalita Karlova Ves – Nováckeho ulica patrí medzi vyhľadávané a pokojné časti Bratislavy s množstvom zelene. V pešej dostupnosti sa nachádza kompletná občianska vybavenosť, vrátane škôl, škôlok, obchodov (Lidl, Billa), zdravotníckych zariadení, parkov a detských ihrísk. Lokalita ponúka výbornú dostupnosť MHD a rýchle spojenie do centra mesta, pričom si zároveň zachováva pokojný charakter vhodný pre rodinné bývanie.
Byt je ideálny pre rodinu, ktorá hľadá priestranné bývanie s dostatkom úložného priestoru, alebo pre klienta, ktorý ocení možnosť vytvoriť si moderné bývanie podľa vlastných predstáv.

Cena nehnuteľnosti je 295 000 € vrátane kompletného právneho a realitného servisu.

Neváhajte nás kontaktovať pre viac informácií alebo dohodnutie obhliadky: Mgr. Nikola Hergovitsová, +421 905 566 697, hergovitsova@elyzia.sk

Tento byt má veľký potenciál a určite stojí za osobné videnie!

Vlastnosti

Status:
aktívne
Vlastníctvo:
osobné
Stav:
čiastočne prerobený
Úžitková plocha:
109.18 m2
Poschodie:
3
Počet podlaží:
6
Počet izieb:
4
Balkón:
nie
Počet kúpeľní:
1
Terasa:
nie
Vykurovanie:
spoločné
Status:
aktívne
Vlastníctvo:
osobné
Stav:
čiastočne prerobený
Úžitková plocha:
109.18 m2
Poschodie:
3
Počet podlaží:
6
Počet izieb:
4
Balkón:
nie
Počet kúpeľní:
1
Terasa:
nie
Vykurovanie:
spoločné

Informatívna úverová kalkulačka

Pozrieť na mape

Radi Vám poradíme

Podobné nehnuteľnosti